Derby – Unit 1 & 2
24 Derby St, Camberwell Victoria
New Development
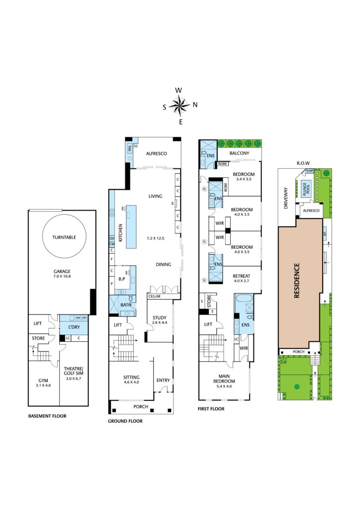
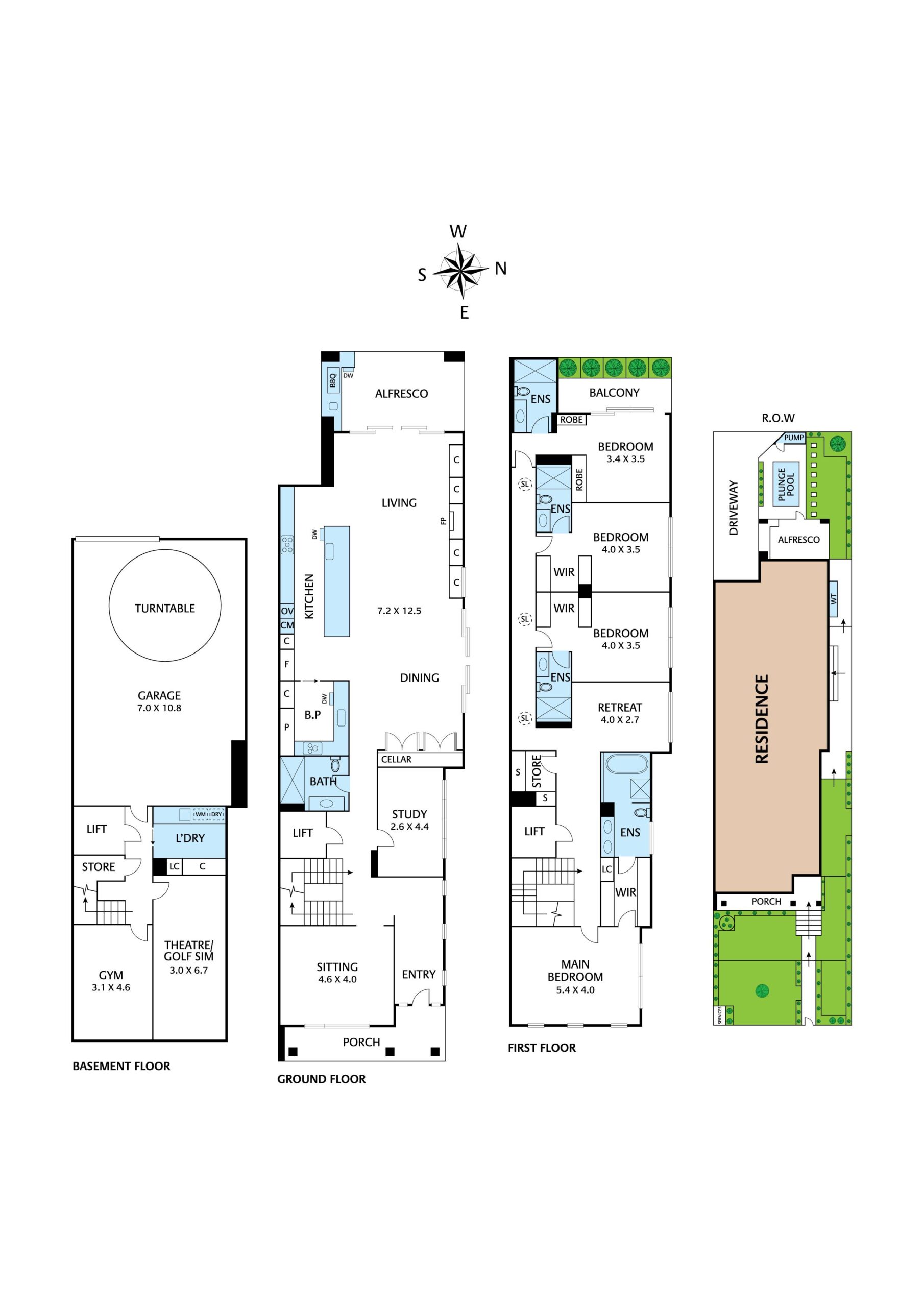
An architect designed achievement of family excellence, this premier new 4 bedroom + study 5 bathroom masterpiece brings the latest in luxury to Camberwell’s Prospect Hill precinct. Boasting a private lift and hydronic underfloor heating on the ground level, this elite new showpiece is refined with its sublime entrance foyer, beautiful lounge, executive style study and gorgeous guest bathroom. The sun filled warmth sets over the sensational open plan entertaining domain with its feature fireplace, glass framed bar and dream kitchen boasting an enormous entertaining island, butler’s pantry (2nd cooktop and dishwasher) and full suite of Miele appliances including the dual door Mastercool fridge and freezer. Family fun continues outside with a pavilion style alfresco patio alongside a Grill King barbeque kitchen (Schmick bar fridge) and inviting electric heat pump heated pool within the landscaped rear garden. Upstairs is home to a radiant retreat and the 4 luxe bedroom suites each with vogue ensuite and robes (three with walk in robes), including one with a private balcony. The basement brings another level of lifestyle with its rubber floored gym, large theatre/living room, fully equipped laundry (chute from all levels) and an epoxy floored triple auto garage with turntable. Curated with chevron parquetry floors, fluted glass, scalloped features and contrasting tones, this stellar home provides zoned ducted reverse cycle air conditioning, full security including CCTV, impressive storage, 2 instant hot water units, double glazing and water harvesting. A coveted address, metres to the 70 tram, so close to Riversdale station and a short walk to Camberwell Junction, Riversdale Park and Camberwell High School, while surrounded by a fine selection of independent schools.



